Адрес: Москва, Энтузиастов проезд, 19А
Авиамоторная
Описание
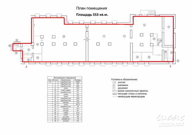
Идеальное помещение 553 м2 для вашего бизнеса готово к работе! Всего в 3-х минутах пешком от м. Авиамоторная!
Забудьте о ремонте и закупке мебели — мы уже всё сделали за вас! Вы получаете полностью оснащенный офис на 20 сотрудников, готовый к запуску в день сделки и отличные помещения для организации бизнеса.
Качественный ремонт, мебель, кухня, современные санузлы и душевые.
Полная инфраструктура: Отдельные входы, большие помещения, погрузка/выгрузка и большая парковка.
Мощное электричество (70 кВт), вентиляция, сигнализация, центральные коммуникации.
Выгодная локация: 300 м от метро, рядом с Шоссе Энтузиастов. Высокая проходимость и транспортная доступность.
Идеально для производства, офиса, склада, магазина или прибыльной сдачи в аренду (есть база заинтересованных арендаторов).
Ваш готовый бизнес или пассивный доход начинается в 5 минутах от метро Авиамоторная.
Сайт: https://www.incom.ru/?utm_source=jcat&utm_medium=paidsearch


