Адрес: Москва, Рязанский проспект, 4Астр2
Описание
Аренда складских и производственных помещений у м. Стахановская, г. Москва, Рязанский проспект 4А
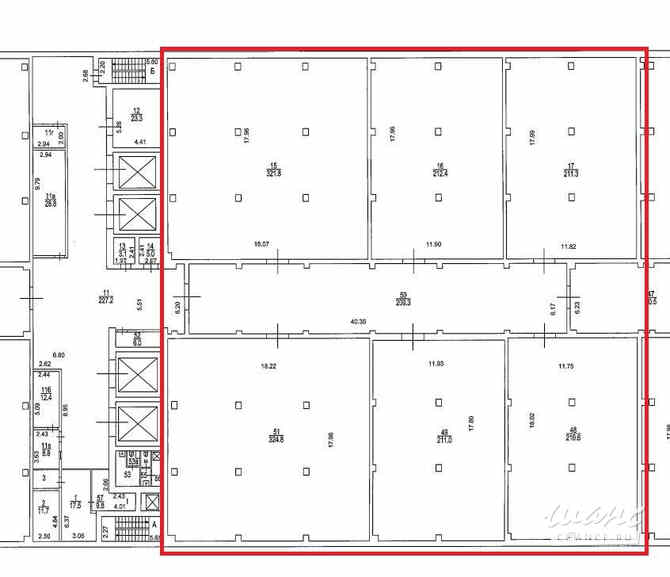
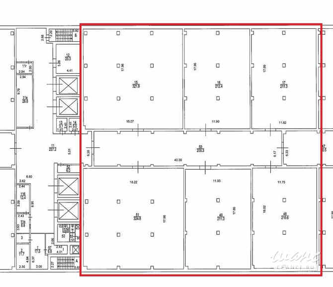
В аренду предлагаются складские и производственные помещения в современном складском комплексе «Кузьминское», всего в 200 метрах от метро «Стахановская».
Основные параметры:
- Этаж - 2-й.
- Высота потолков - 5 м.
- Электрическая мощность - 15 кВт (с возможностью увеличения) .
- Отопление - центральное.
- Температура на складе: от +15 до +22.
- Минимальный срок аренды - 11 мес.
Инфраструктура и преимущества:
- Прямая аренда от собственника, без комиссии.
- Удобные подъездные пути, есть пандус на 20 постов и теплая зона погрузки/разгрузки.
- Парковка.
- Лифты 5 тонн (4 шт. , 34 м) , работают с 08: 00 до 20: 00.
- Круглосуточный доступ (24/7) и охрана.
- Вентиляция приточно-вытяжная.
- На территории предусмотрены сервисные услуги: погрузочно-разгрузочные работы, уборка, интернет, охрана.
- Платный въезд на территорию.
- Есть офис для сотрудников и теплое помещение для работников склада
- Удобное транспортное сообщение: 4 км до ТТК, 7 км до МКАД, рядом Рязанский и Волгоградский проспекты, шоссе Энтузиастов. В пешей доступности метро Стахановская (1 мин) , и метро Нижегородская (10 минут) .
Отличный вариант под склад, мелкое производство или торгово-офисную деятельность. Подходит для дистрибуции, интернет-магазинов, компаний с активной логистикой.
Адрес: г. Москва, Рязанский проспект, д. 4А, стр. 2
Комплекс «Кузьминское».
Сайт: http://astrum-estate.ru?utm_source=jcat&utm_medium=paidsearch


