Адрес: Выборг, Мира улица, 10
Описание
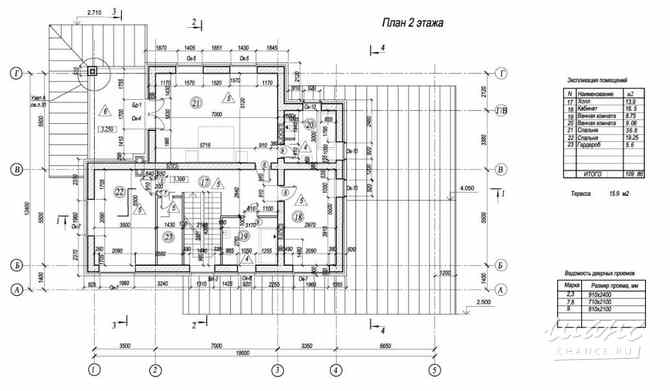
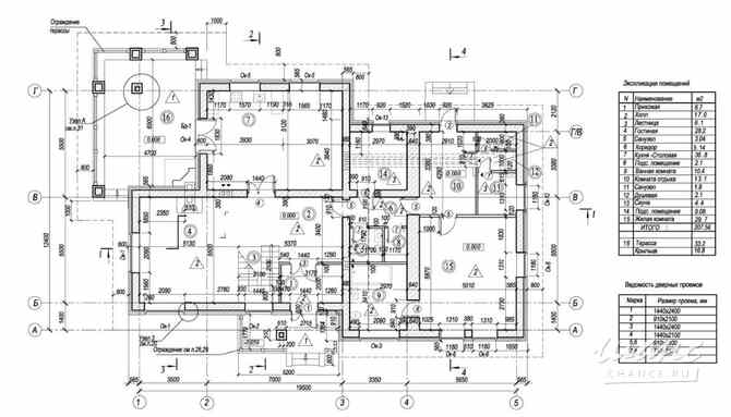
Продается через электронные торги на площадке ЭТП ГПБ Индивидуальный жило дом площадью 500,2 кв.м., расположенный по адресу:
ЛО, Выборгский район, МО "Первомайское сельское поселение", пос. Ленинское, улица Мира, д.10
Год построки: 2019
Кадастровый номер: 47:01:1704003:396
Дом распложен на земельном участке площадью 3022 +/- 38 кв.м.
Категория земель: Земли населенных пунктов
Виды разрешенного использования: под строительство малоэтажной коттеджной застройки.
Кадастровый номер: 47:01:1704003:80
Характеристики и описание объекта
Жилой дом:
Цоколь здания облицован путиловским камнем; Горизонтальная гидроизоляция стен - цементно-песчаный раствор 1:2, толщиной 35 мм с водостойкими добавками из жидкого стекла;
Наружные стены 3-х слойные - кирпич пустотелый строительный, минераловатные плиты - 75 мм, воздушная прослойка 25 мм, лицевой кирпич пустотелый;
Внутренние перегородки - гипсобетонные, пазогребные, толщиной 100 мм;
Кровля - мягкая черепица по деревянной обрешётке;
Этажность: 2, мансарда
Хозяйственны блок:
Цоколь здания облицован искусственным камнем;
Горизонтальная гидроизоляция стен - цементно-песчаный раствор 1:2, толщиной 35 мм с водостойкими добавками из жидкого стекла;
Наружные стены 3-х слойные - кирпич пустотелый строительный, минераловатные плиты - 80 мм, воздушная прослойка 20 мм, лицевой кирпич пустотелый;
Внутренние перегородки - гипсобетонные, пазогребные, толщиной 100 мм;
Кровля - гонтовые плитки;
Этажность: 2.
Сайт: https://realty.jcat.ru/145bf038/?utm_source=chance&utm_medium=paidsearch


