Адрес: Тула, Хворостухина улица, 2Б
Описание
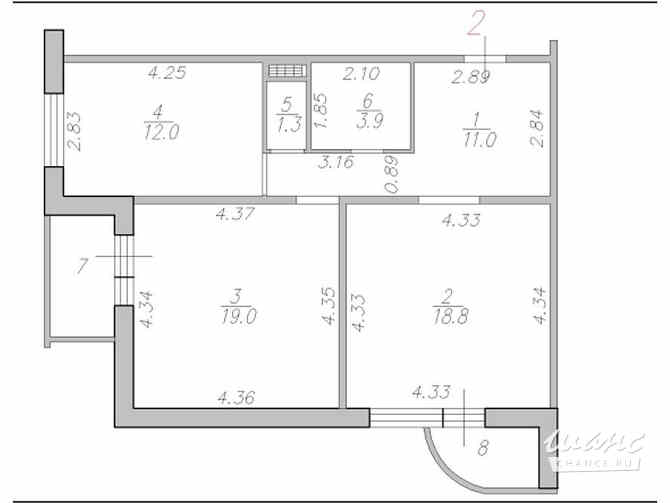
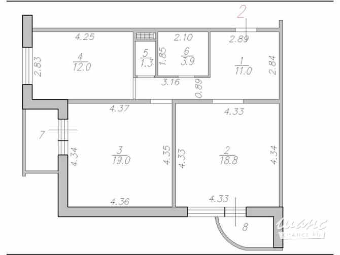
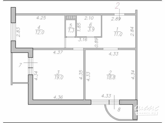
В рамках процедуры банкротства должника с торгов реализуется квартира по адресу: г. Тула, ул. Хворостухина, д. 2Б, кв. 2. Кадастровый номер: 71: 30: 030816: 8362Дом 2012 года постройки, комнаты 19 и 18,8 кв. м, кухня 12 кв. м, два балкона, в квартире выполнен ремонт. Рядом с домом два детских сада, школа, магазины, остановка общественного транспорта.
Прием заявок проходит на электронной торговой площадке "Центр дистанционных торгов", задаток 10%. Помощь от Сбербанка - Агентский сервис по участию на торгах. Агент за Вас оформит документы, подаст заявку и примет участие на торгах.
Подробнее о способах оформления сделки, стоимости приобретения имущества Вы можете узнать по номеру телефона, указанному в объявлении, в будние дни с 09: 00 до 18: 00 (по времени МСК, GMT+3) , также на сайте активов Банка Portal-DA.
Сайт: http://portal-da.ru/objects/441192-kvartira-2-k-kvartira-66-m-gorod-tula?utm_campaign=jcat&utm_content=441192&utm_medium=referral&utm_source=feed


