Адрес: Пенза, Лозицкой улица, 1а
Описание
Продаётся редкая планировка в ЖК бизнес-класса. Отдельная гардеробная 9 м2 и
постирочная 6 м2 — вы забудете про шкафы в комнатах и вечный беспорядок. Основной
ремонт по дизайн-проекту выполнен, финиш делаете под себя.
Адрес: г. Пенза, ул. Лозицкой, 1а (ЖК Grand Park, Ближнее Арбеково)
Дом: 2023 г.п., кирпично-монолитный, 20 этажей
Этаж: 17 (вид на город, окна во двор и на проезжую часть)
---
ЧТО С РЕМОНТОМ:
Многие продают «готовый дизайнерский ремонт», но чаще всего это означает «чужие
обои, которые вы захотите переделать».
Здесь всё иначе:
УЖЕ СДЕЛАНО:
Стяжка полов, штукатурка стен по маякам
. Подвесной потолок
. Напольное покрытие- кварцвиниловый ламинат
. Стены и полы в ванной- керамогранит
Разводка электрики
Сантехника частично установлена
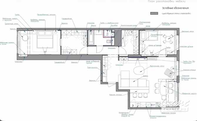
Дизайн-проект с расстановкой мебели (передаётся бесплатно)
ОСТАЛОСЬ ВАМ:
Шпатлевка-Покраска стен/потолков
Монтаж плинтусов, молдингов, светильников
Установка кондиционеров
Мебель и декор
Реалистичный срок: 3–3,5 месяца на финишную отделку + мебель = въезд через 4- 5
месяцев.
Почему это плюс: вы не переплачиваете за чужой вкус. Вы получаете квартиру, где всё
сделано качественно на предчистовом этапе, а финиш выбираете под себя и свой бюджет.
---
ПЛАНИРОВКА:
Общая площадь: 93 м2 (евроформат)
Кухня-гостиная — 37 м2
Спальня — 15 м2
Детская — 13 м2
Гардеробная — 9 м2
Постирочная — 6 м2
Санузел (совмещённый) — 5 м2
Прихожая/коридор — 8 м2
Что важно знать:
Гардеробная 9 м2 — это целая комната для одежды, чемоданов и сезонных вещей.
Спальни остаются чистыми и свободными.
Постирочная 6 м2 — стиральная и сушильная машины больше не на виду.
Кухня-гостиная 37 м2 — реально просторное пространство для семьи и гостей.
---
О ДОМЕ И ЖК:
ЖК Grand Park — один из самых комфортных комплексов в Ближнем Арбеково.
- Дом 2023 года, кирпично-монолитный.
- Закрытая территория, видеонаблюдение, охрана.
- Детская и спортивная площадки во дворе.
- Подземный паркинг.
- Первые этажи — коммерция (магазины, сервисы).
В подъезде: 2 бесшумных лифта (грузовой и пассажирский), на этаже всего 5 квартир,
колясочная, санузел в холле.
---
ВИД И ЛОКАЦИЯ:
17 этаж, окна на две стороны: восток и запад.
Одна сторона выходит в тихий двор
Другая — на проезжую часть (панорама города, огни вечером)
ул. Лозицкой, 1а, Ближнее Арбеково. Вся инфраструктура рядом, удобный выезд на
основные магистрали.
---
ЮРИДИЧЕСКАЯ ЧИСТОТА:
Один собственник
Без обременений (не в залоге, не в ипотеке)
Свободна от регистрации
Документы готовы к сделке
Любые форматы расчёта: наличные, ипотека
---
Звоните, пишите в MAX/Telegram — покажу квартиру в удобное время.
Сайт: https://oioi860.github.io/senzhapova/?utm_source=jcat&utm_medium=paidsearch


