Адрес: Павловск, Звериницкая улица, 19
Шушары
Описание
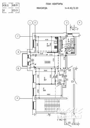
Продается 3-комн. квартира свободной планировки, площадью 68.6 м2, в 36 мин. транспортом от м.Шушары в Пушкинском районе Санкт-Петербурга.
Жилая площадь 23.3 м2, кухня 12.4 кв.м, ремонт не нужен, можно жить, есть бытовая техника: стиральная машина, холодильник, телевизор, кондиционер, посудомоечная машина, микроволновая печь. Раздельных санузлов - 1.
На полу ламинат, балконов - 1, окна выходят во двор.
Квартира располагается на 3 этаже 3-этажного дома.
Сделана перепланировка - надстроена антресоль, площадью 10 кв.м. Проект согласован и утвержден. Площадь антресоли в общую площадь не входит. Все остальное на фотографиях. Площадка для стоянки автомобилей внутри огороженной территории. До входа в Павловский парк - 500 метров. Продовольственный магазин в 30 метрах. Рядом остановка автобуса. Один взрослый собственник. Никто не прописан. Без обременений. Звоните, приезжайте, поторгуемся, найдём общий язык, достигнем результата!
Сайт: https://realty.jcat.ru/d0cf287b/?utm_source=chance&utm_medium=paidsearch


