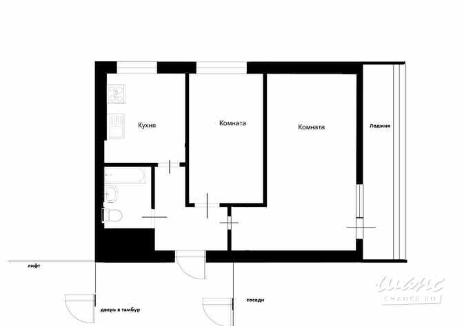
2-к квартира, 37.2 м², этаж 5/9
Адрес: Одинцово, Молодежная улица, 1
Общая площадь: 37.2 м²
Жилая площадь: 23.4 м²
Этаж: 5
Этажность дома: 9
Тип дома: кирпичный
Кол-во комнат: 2
Описание
Лучше пишите, сразу отвечу вам.
Продается 2-к квартира 37.2 м2. Центральная и самая обжитая часть города с развитой инфраструктурой. Рядом все магазины, детские, спортивные учреждения .
Дом кирпичный, 1972 года постройки. Квартира в собственности у одного взрослого собственника, свободная продажа.
Совмещенный санузел, застекленная лоджия с торца дома, вся мебель остается.
Звоните, отвечу на все интересующие вопросы.
Сайт: https://realty.jcat.ru/e4828750/?utm_source=chance&utm_medium=paidsearch
Похожие объявления


