Адрес: Москва, Шарикоподшипниковская улица, 11к3
Дубровка
Описание
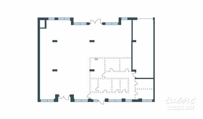
Сдаётся в аренду коммерческое помещение площадью 302,4 мна 1-м этаже жилого дома в ЖК «MYPRIORITY Дубровка». ВОЗМОЖНОЕ НАЗНАЧЕНИЕ - СУПЕРМАРКЕТ.
Основные преимущества:
Отдельный вход;
Место под вывеску;
Витринное остекление;
Арендные каникулы;
Помещение без ремонта, что позволяет обустроить его по своему вкусу и требованиям бизнеса;
Наличие коммуникаций: водоснабжения, канализации, электроснабжения, отопления;
Помещение находится в новом жилом комплексе бизнес-класса;
Метро в пешей доступности;
Развитый район с насыщенной инфраструктурой и активным пешеходным трафиком.
Технические характеристики: наличие всех необходимых коммуникаций: водоснабжение, канализация, электроснабжение. Выделенная мощность - 75,7 кВт.
Условия: помещение предоставляется без посредников, напрямую от собственника - компании «Аструм Недвижимость», которая управляет коммерческой инфраструктурой жилых комплексов ГК «Гранель».
ЖК «MYPRIORITY Дубровка» расположен в ЮВАО Москвы, в шаговой доступности от метро «Дубровка». Это перспективное место для открытия бизнеса благодаря высокой транспортной доступности (рядом ТТК, станции метро и МЦК) и плотной жилой застройке. Комплекс сочетает современные архитектурные решения от бюро T+T Architects с динамичной урбанистической средой, что привлекает внимание как местных жителей, так и посетителей.
На первых этажах комплекса представлены коммерческие помещения площадью от 26 до 302 кв. м. Каждое помещение имеет отдельный вход, витринное остекление и возможность гибкой планировки. Здесь можно открыть супермаркет, кафе, офис, магазин или предприятие сферы услуг. Высокий пешеходный трафик обеспечивается благодаря близости жилого комплекса и будущего крупного общественно-делового квартала.
«MYPRIORITY Дубровка» - это не только комфортное место для жизни, но и отличная площадка для развития бизнеса.
Наши менеджеры помогут вам подобрать наиболее подходящее помещение для вашего бизнеса. Звоните и узнайте подробности.
Сайт: http://astrum-estate.ru?utm_source=jcat&utm_medium=paidsearch


