Адрес: Киржач, Некрасовская улица, 28







Описание
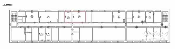
Нежилое помещение площадью 30.6 кв.м. по адресу: Российская Федерация, Владимирская область, г Киржач, ул Некрасовская, д. 28, помещ. 7 Кадастровый номер: 33:02:010705:554 Номер, тип этажа, на котором расположено помещение, машино-место: Этаж № 2 Вид, номер, дата и время государственной регистрации права: Собственность 33:02:010705:554-33/126/2023-1 от 15.09.2023 Ограничение прав и обременение объекта недвижимости: не зарегистрировано. Кирпичное здание 1980 года постройки расположено в центре города на 1 ой линии, рядом торговые центры, администрация. Большая проходимость. Планировка помещений кабинетная. Высота потолков - 3,84 м. Основное назначение - офисное помещение. Вход в помещение общий из общей входной группы. Доступ в помещение - пропускная система. Общее состояние помещения - косметический ремонт. В помещении имеются: окна, с/у, канализация/водоотведение, центральное отопление, выделенная электрическая мощность -1 кВт. Парковка - стихийная. Продавец юридическое лицо. Цена указана с учетом НДС. Звоните, оперативно ответим на все ваши вопросы.
Сайт: https://realty.jcat.ru/a7ec48d3/?utm_source=chance&utm_medium=paidsearch