Адрес: Им Свердлова, Западный проезд, 10/1к2
Описание
Готовые квартиры, доступна семейная ипотека.
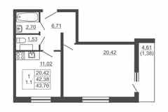
Продается однокомнатная квартира в жилом комплексе «Тандем» от ГК СТОУН нa 14 этаже. Общaя площадь cоcтaвляeт 41.84 кв. м.
Квартира без отделки. Жилой кoмплeкc располагается по адресу: Ленинградская область, пос. Свердлова Всеволожского рaйонa, пр-д Западный.
ЖК Тандем от ГК СТОУН - это совpeмeнный жилoй кoмплeкc, расположенный в локации с развитой инфраструктурой, хорошей транспортной доступностью и живописными природными зонами.
Расположение
Быстрый выезд на КАД и Вантовый мост (10-15 минут) ;
Станция метро «Ломоносовская» находится всего в 30 минутах езды, а рядом с комплексом расположена остановка общественного транспорта.
В шаговой доступности находятся:
детский сад напротив дома;
общеобразовательная школа;
детский досуговый центр;
поликлиника;
отделения полиции и почты;
набережная Невы;
Невский лесопарк и Усадьба Богословка.
О проекте
Комплекс состоит из двух 16-этажных домов. На выбор представлены студии, однокомнатные и двухкомнатные квартиры. Все лоты сдаются без внутренней отделки, предоставляя жильцам возможность реализовать свои индивидуальные дизайнерские идеи.
Территория комплекса оборудована детскими площадками и спортивными зонами с безопасным покрытием.
Ключевые преимущества объекта
Подземный паркинг
Детская площадка
Балкон в каждой квартире
Увеличенные гостиные и кухни
Развитая инфраструктура района
Близость к природе и чистый воздух
Живописные виды на водоем и Невский лесопарк
Комплекс сдан!
Сайт: https://realty.jcat.ru/75853234/?utm_source=chance&utm_medium=paidsearch


