Адрес: Химки, КП Новогорск Клаб территория, 274










Описание
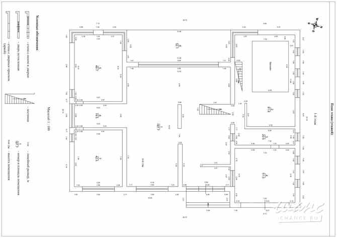
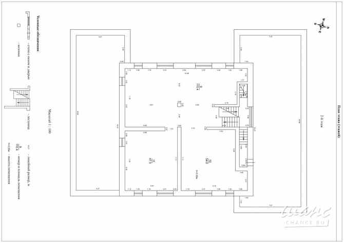
Этот дом построен в соответствии с современными стандартами премиум-уровня с отдельным въездом на территорию поселка.
Особенности дома:
- тёплый гараж на два автомобиля;
- СПА-комплекс с бассейном;
- высокие потолки: 4,5 метра на первом этаже и 3,5 метра — на втором;
- несколько спален с собственными гардеробными и санузлами;
панорамные окна;
- сдвижные портальные окна-двери из алюминия на первом этаже.
Расположение дома уникально: из него открывается вид на озеро, а внутренняя инфраструктура коттеджного посёлка находится поблизости. Вы сможете легко добраться до детских и спортивных площадок, теннисного корта, прогулочной аллеи и набережной. Также рядом расположены ресторан и супермаркет.
Участок, на котором построен дом, имеет ряд преимуществ:
- расположен на возвышенности;
- ровный и сухой;
- правильной прямоугольной формы с большим участком;
- перед домом есть забетонированная площадка на несколько автомобилей.
Дом подключён ко всем центральным коммуникациям.
Сайт: http://www.novogorsk-club.ru?utm_source=jcat&utm_medium=paidsearch;
Отопление: центральное;
Электричество: есть;
Канализация: центральная;
Водоснабжение: центральное;
Газ: магистральный